Top sanierte 2-Zimmer-Wohnung mit Balkon & Stellplatz im 6-Parteienhaus

  • 205.000€
  • 10.000€/Außenstellplatz
63071 Offenbach am Main
Zum Verkauf
63071 Offenbach am Main
  • 205.000€
  • 10.000€/Außenstellplatz

Übersicht

  • Wohnung
  • Immobilientyp
  • 2
  • Zimmer
  • 1
  • Badezimmer
  • 57
  • 1950
  • Baujahr
  • 1
  • Garage
  • VK-213
  • Objekt-ID

OBJEKTBESCHREIBUNG

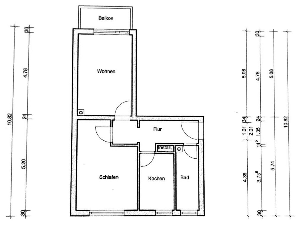
Diese charmante 2-Zimmer-Wohnung befindet sich im 1. Obergeschoss eines gepflegten 6-Parteienhauses in ruhiger und familienfreundlicher Lage. Auf rund 57 m² Wohnfläche bietet sie ein durchdachtes Raumkonzept mit hellen, gut geschnittenen Zimmern und einem gemütlichen Balkon, der zum Verweilen im Freien einlädt.

Seit Januar 2022 zuverlässig vermietet, erwirtschaftet die Immobilie eine monatliche Warmmiete von 900,00 €, die sich aus 650,00 € Kaltmiete zzgl. 250,00 € Nebenkostenvorauszahlung zusammensetzt – eine attraktive Gelegenheit für Kapitalanleger, die eine solide und gepflegte Immobilie in gefragter Wohnlage suchen. Das monatliche Hausgeld beträgt seit Dezember 2024 insgesamt 250,00 € inkl. anteiliger Rücklage i.H.v. 52,87 €.

360 Grad-Rundgang: https://my.matterport.com/show/?m=dTLmC8Rqgq7
Passwort: Auf Anfrage

Ausstattung

Das aus dem Jahr 1950 stammende Gebäude wurde fortlaufend instand gehalten – zuletzt erfolgte eine aufwendige Modernisierung der Außenfassade im Jahr 2021. Die Wohnung selbst wurde im Jahr 2015 umfassend saniert und präsentiert sich in einem modernen, gepflegten Zustand.

Im Zuge der Maßnahmen wurden unter anderem die Wohnräume mit einem hochwertigen, pflegeleichten Vinylboden ausgestattet und das helle Tageslichtbad vollständig kernsaniert. Zudem sorgen doppelt verglaste Kunststofffenster mit elektrisch steuerbaren Rollläden für zeitgemäßen Wohnkomfort. Die Gas-Etagenheizung des renommierten Herstellers Buderus stammt aus dem Jahr 2011. Eine moderne Einbauküche inklusive aller Elektrogeräte – im Kaufpreis bereits enthalten – rundet das ansprechende Gesamtbild ab. Für zusätzlichen Stauraum sorgt schließlich ein großzügig geschnittenes Kellerabteil.

Lage

Diese attraktive Eigentumswohnung befindet sich in bevorzugter Wohnlage im Stadtteil Buchhügel. Die Umgebung überzeugt durch ihre harmonische Verbindung aus urbaner Infrastruktur und naturnaher Lebensqualität. Alle Einrichtungen des täglichen Bedarfs – darunter Einkaufsmöglichkeiten, Schulen, Kindertagesstätten und ärztliche Versorgung – sind in wenigen Gehminuten bequem erreichbar. Für Erholung und Freizeit bieten der nahe gelegene Lauterbornpark sowie der großzügige Leonhard-Eißnert-Park ideale Rückzugsorte im Grünen.

Die Verkehrsanbindung ist hervorragend: Der öffentliche Nahverkehr ist fußläufig erreichbar und ermöglicht mit der nahegelegenen S-Bahn-Station Offenbach Ost eine schnelle Verbindung in die Frankfurter Innenstadt und das gesamte Rhein-Main-Gebiet. Auch die Autobahnen A661 und A3 sind in wenigen Fahrminuten erreichbar und bieten ideale Voraussetzungen für Pendler.

Hier wohnen Sie ruhig im Grünen und doch nah am Puls der Stadt – eine seltene Kombination, die sowohl Eigennutzer begeistert als auch Investoren überzeugt.

Sonstiges

Wir sind provisionspflichtig tätig für den Verkäufer und den Käufer.
Die Maklerprovision beträgt für beide Parteien (Verkäufer und Käufer) jeweils 3,00 % des Kaufpreises zzgl. gesetzlicher Umsatzsteuer von derzeit 19 % und ist bei notariellem Vertragsabschluss verdient und fällig. Der Provisionsanspruch gilt auch gegenüber Lebensgefährten, eingetragenen Lebenspartnern, Familienmitgliedern, Lebensgemeinschaften, Verwandten, Betriebsvertreters oder Franchisegebern/-partnern.

Alle in diesem Exposé enthaltenen Informationen, Abmessungen und Preisangaben beruhen auf Angaben des Verkäufers (oder eines Dritten). Die IMMO PANDA UG (haftungsbeschränkt) übernimmt für deren Richtigkeit und Aktualität keine Haftung. Sollte das von uns nachgewiesene Objekt bereits bekannt sein, teilen Sie uns dieses bitte unverzüglich mit. Im Übrigen gelten die allgemeinen Geschäftsbedingungen für das Rechtsverhältnis zwischen Ihnen und der IMMO PANDA UG (haftungsbeschränkt).

Das Geldwäschegesetz (GWG) verpflichtet uns, mit Erstkontaktaufnahme Ihre vollständigen Kontaktdaten aufzunehmen. Daher können wir nur Anfragen bearbeiten, die Ihren vollständigen Namen, Ihre Anschrift und Ihre Telefonnummer enthalten. Bei Ihrer mündlichen oder schriftlichen Anfrage erklären Sie sich mit der Speicherung Ihrer angegebenen Daten einverstanden. Mit Zusendung unseres Exposé erhalten Sie die gesetzlichen Verbraucherinformationen sowie die Widerrufsbelehrung. Im Falle eines Widerrufs werden Ihre Daten innerhalb von 14 Tagen gelöscht.

SIE MÖCHTEN IHRE IMMOBILIE VERKAUFEN? Nutzen Sie jetzt unsere kostenlose Immobilienbewertung! Die Wertindikation wird Ihnen innerhalb weniger Minuten mit weiteren Informationen per E-Mail zugesendet. Für eine detaillierte Marktpreiseinschätzung ist nach Absprache auch eine eingehende Objektprüfung vor Ort möglich. Wenden Sie sich hierfür vertrauensvoll an uns! Wir freuen uns auf Ihren Anruf oder Ihre Mail-Anfrage.

Energieklasse

  • Energetische Klasse: F
  • Globaler Energieleistungsindex: 170,00 kWh / m²a
  • A+
  • A
  • B
  • C
  • D
  • E
  • 170,00 kWh / m²a | Energieklasse F
    F
  • G
  • H

Kontaktinformationen

Listings anzeigen
ImmoPanda
  • ImmoPanda

Erkundigen Sie sich nach dieser Immobilie


    Sie sind einverstanden, dass die oben angegebenen Daten elektronisch erhoben und gespeichert werden. Die Daten werden nur zu Zwecken der Bearbeitung und Beantwortung Ihrer konkreten Anfrage genutzt. Sie können diese Einwilligung jederzeit durch Nachricht an uns widerrufen. Im Falle des Widerrufs werden Ihre Daten umgehend gelöscht, soweit gesetzliche Vorschriften nicht lediglich die Sperrung der Daten vorsehen. Weitere Informationen entnehmen Sie gern unserer Datenschutzerklärung.*
    Die mit * gekennzeichneten Felder sind Pflichtfelder.

    Compare listings

    Vergleichen
    ImmoPanda
    • ImmoPanda